Stories by Mirfa - Floor Plan

Madinat Al Mataar, Dubai

Listing

Floor Plan

Starting Price

AED 579,780

Stories Residences provides enough floor plans of exclusive class apartments that can be used in the current lifestyle. The layouts are characterized by open living spaces, relaxing bedrooms and convenient kitchens designed to be functional and efficient. Balconies are used to extend the living spaces. The layouts will center on flexibility and the utilization of space and to have every home easily adjusted to the requirements of the occupant without losing any of the comfort or practicality.

Floor Plan Brochure

Floor PlanCategorySub CategoryFloor DetailsSizes Size Breakup
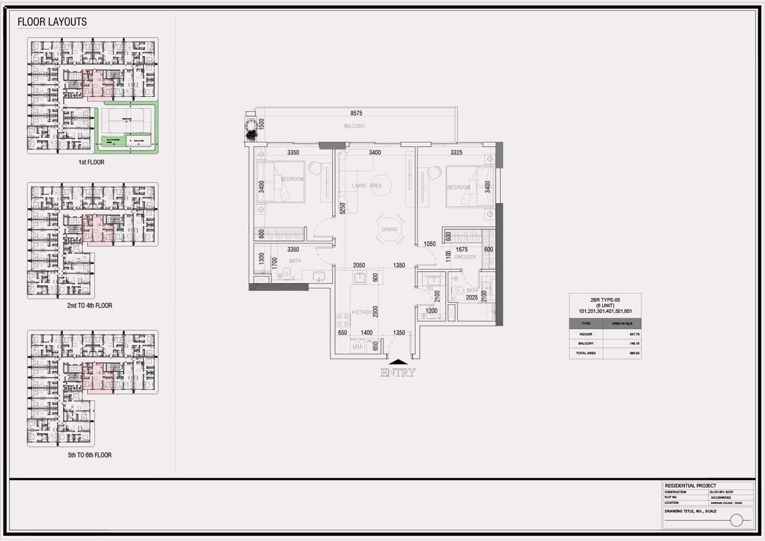
Unit 101 To 601 (Type-05)1st To 6th Floor2 BedroomsUnit 101 To 601 (Type-05)995.93  Sq FtClick Here
Unit 102 To 602 (Type-01)1st To 6th Floor1 BedroomUnit 102 To 602 (Type-01)663.10  Sq FtClick Here
Unit 103 To 603 (Type-04)1st To 6th Floor2 BedroomsUnit 103 To 603 (Type-04)1135.75  Sq FtClick Here
Unit 104 To 604 (Type-03)1st To 6th Floor2 BedroomsUnit 104 To 604 (Type-03)1133.14  Sq FtClick Here
Unit 105 To 606 (Type-02)1st To 6th Floor2 BedroomsUnit 105 To 606 (Type-02)1016.43  Sq FtClick Here
Unit 107 To 607 (Type-01)1st To 6th Floor2 Bedrooms + MaidUnit 107 To 607 (Type-01)1146.45  Sq FtClick Here
Unit 108 To 612 (Type-04)1st To 6th FloorStudioUnit 108 To 612 (Type-04)386.72  Sq FtClick Here
Unit 113 To 613 (Type-01)1st To 6th FloorStudioUnit 113 To 613 (Type-01)387.08  Sq FtClick Here
Unit 114 To 614 (Type-07)1st To 6th Floor2 BedroomsUnit 114 To 614 (Type-07)1042.64  Sq FtClick Here
Unit 115 To 615 (Type-06)1st To 6th Floor2 BedroomsUnit 115 To 615 (Type-06)1121.29  Sq FtClick Here
Unit 116 To 416 (Type-02)1st To 4th FloorStudioUnit 116 To 416 (Type-02)391.35  Sq FtClick Here
Unit 117 (Type-03)1st FloorStudioUnit 117 (Type-03)390.45  Sq FtClick Here
Unit 217 To 417 (Type-02)2nd To 4th Floor1 BedroomUnit 217 To 417 (Type-02)609.79  Sq FtClick Here
Unit 516 & 616 (Type-08)5th & 6th Floor2 BedroomsUnit 516 & 616 (Type-08)959.05  Sq FtClick Here

Thank You for your enquiry ! We will get back to you shortly...

Please wait...

Get in touch with us!

Similar Projects

The Borough at JVC
AED 729,840
The Borough at JVC

Al Barsha South 4, Dubai

Studios, 1 & 2 Bedroom

Various Sizes

Q1 - 2028

View Detail
Ashton Park Residences
AED 649,254
Ashton Park Residences

Al Barsha South 4, Dubai

Studio, 1 & 2 Bedrooms

384 - 1,627 Sq. Ft.

Mar - 2025

View Detail
Numa Reserve
AED 12 M
Numa Reserve

MBR City, Dubai

5, 6 & 7 Bedroom

6,020 - 15,363 Sq Ft.

Q4 - 2026

View Detail

Similar Projects in Dubai South

New Launch
Zazen Acacia Residences
AED 900K
Zazen Acacia Residences

Zazen Property Development LLC

Apartment

1, 2 & 3 Bedroom

670 - 1,780 Sq Ft.

Mar - 2028

View Details
New Launch
RR Grand at Dubai South
AED 620K
RR Grand at Dubai South

Red Rose Properties

Apartment

Studio, 1 & 2 Bedroom

358 - 1,299 Sq Ft.

Mar - 2028

View Details
Under Construction
AL Haseen 5 Residences
AED 594K
AL Haseen 5 Residences

DUGASTA

Apartment

Studio, 1, 2 & 3 Bedroom

368 - 1,818 Sq Ft.

Mar - 2028

View Details
Upcoming
Darah Residence
Call Us
Darah Residence

Darah South Development

Apartment

Will Be Update Soon

Various Sizes

Mar - 2028

View Details

Your exclusive invitation for booking your dream home.

Feel free to contact us, Our Professional team is always here to help you.
Get in touch