Binghatti Dusk - Floor Plan

Al Barsha South 4, Dubai

Listing

Floor Plan

Starting Price

AED 699,999

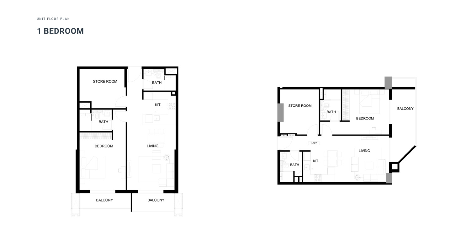
The Binghatti Dusk is promoting precisely-constructed floor plans of studios & 1-bedroom apartments in JVC, Dubai. This multi-storey compelling tower features exceptionally bespoke home units with open layouts and elegant themed fully furnished interiors with an amazing option of private pools. All 52 studios, 53 one-bedroom units and 2 retail shops with spacious rooms, oak wood, wooden porcelain, white & beige wood materials in flooring & every corner.

Floor Plan Brochure

Floor PlanCategorySub CategoryFloor DetailsSizes Size Breakup
1 Bedroom - 10th1 BedroomNA1 Bedroom - 10thClick Here
1 Bedroom - 11th1 BedroomNA1 Bedroom - 11thClick Here
1 Bedroom - 12th1 BedroomNA1 Bedroom - 12thClick Here
1 Bedroom - 1st1 BedroomNA1 Bedroom - 1stClick Here
1 Bedroom - 2nd1 BedroomNA1 Bedroom - 2ndClick Here
1 Bedroom - 3rd1 BedroomNA1 Bedroom - 3rdClick Here
1 Bedroom - 4th1 BedroomNA1 Bedroom - 4thClick Here
1 Bedroom - 5th1 BedroomNA1 Bedroom - 5thClick Here
1 Bedroom - 6th1 BedroomNA1 Bedroom - 6thClick Here
1 Bedroom - 7th1 BedroomNA1 Bedroom - 7thClick Here
1 Bedroom - 8th1 BedroomNA1 Bedroom - 8thClick Here
1 Bedroom - 9th1 BedroomNA1 Bedroom - 9thClick Here
1st Floor1st FloorTypical Floor Plan1st FloorClick Here
2nd Floor2nd FloorTypical Floor Plan2nd FloorClick Here
3rd Floor3rd FloorTypical Floor Plan3rd FloorClick Here
4th Floor4th FloorTypical Floor Plan4th FloorClick Here
Ground FloorGround FloorTypical Floor PlanGround FloorClick Here
Studio - 1stStudioNAStudio - 1stClick Here
Studio - 2ndStudioNAStudio - 2ndClick Here
Studio - 3rdStudioNAStudio - 3rdClick Here
Studio - 4thStudioNAStudio - 4thClick Here
Studio - 5thStudioNAStudio - 5thClick Here
Studio - 6thStudioNAStudio - 6thClick Here
Studio - 7thStudioNAStudio - 7thClick Here
Studio - 8thStudioNAStudio - 8thClick Here
Studio - 9thStudioNAStudio - 9thClick Here

Thank You for your enquiry ! We will get back to you shortly...

Please wait...

Get in touch with us!

Similar Projects

Tilal by Binghatti
AED 4.2 M
Tilal by Binghatti

Dubai, Dubai

5 & 6 Bedroom

Various Sizes

Q4 - 2028

View Detail
Binghatti Skyflame Tower 2
AED 699,999
Binghatti Skyflame Tower 2

Al Hebiah Fifth, Dubai

Studio, 1 & 2 Bedroom

401 - 1,257 Sq. Ft.

Dec - 2027

View Detail
Binghatti Skyflame
AED 699,999
Binghatti Skyflame

Al Hebiah Fifth, Dubai

Studio, 1 & 2 Bedroom

400 - 1,342 Sq Ft.

Dec - 2027

View Detail
Binghatti Etherea
AED 764,999
Binghatti Etherea

Al Barsha South 4, Dubai

Studio, 1 & 2 Bedroom

336 - 1,330 Sq Ft.

Q3 - 2027

View Detail

Similar Projects in Jumeirah Village Circle

New Launch
Oxford Cove at JVC
AED 679K
Oxford Cove at JVC

Iman Developers

Apartment

Studio, 1 & 2 Bedroom

388 - 1,061 Sq Ft.

Ready To - Move in

View Details
Under Construction
Marwa Homes 3 at JVC
AED 3,784,200
Marwa Homes 3 at JVC

NWD Group

Villa

3 Bedroom

3,203 - 3,283 Sq Ft.

Ready To - Move in

View Details
New Launch
Coventry Living at JVC
Call Us
Coventry Living at JVC

GFS Developer

Apartment

Studio, 1 & 2 Bedroom

420 - 1,864 Sq. Ft.

Ready To - Move in

View Details
New Launch
The Borough at JVC
AED 729,840
The Borough at JVC

Mirfa IBC

Apartment

Studios, 1 & 2 Bedroom

Various Sizes

Ready To - Move in

View Details

Your exclusive invitation for booking your dream home.

Feel free to contact us, Our Professional team is always here to help you.
Get in touch