PG Maison - Floor Plan

Jebel Ali, Dubai

Listing

Floor Plan

Starting Price

AED 1,499,999

Choose your dream home from the carefully designed floor plans of 2-beroom apartments at the striking building of PG Masion at Al Furjan in Dubai. Each unit is blending open-plan living and dining areas, a study or office space, personal balcony and separate modular kitchen and laundry. The fully furnished and curated rooms with large windows, bright sunlit and airy environment.

Floor Plan Brochure

Floor PlanCategorySub CategoryFloor DetailsSizes Size Breakup
Apartment 1 & 4Typical Plan2 Bedrooms + StudyApartment 1 & 41482.00  Sq FtClick Here
Apartment 2 & 3Typical Plan2 Bedrooms + StudyApartment 2 & 31566.00  Sq FtClick Here
Type 01Apartments2 Bedrooms + StudyType 011527.94  Sq FtClick Here
Type 02Apartments2 Bedrooms + StudyType 021493.60  Sq FtClick Here
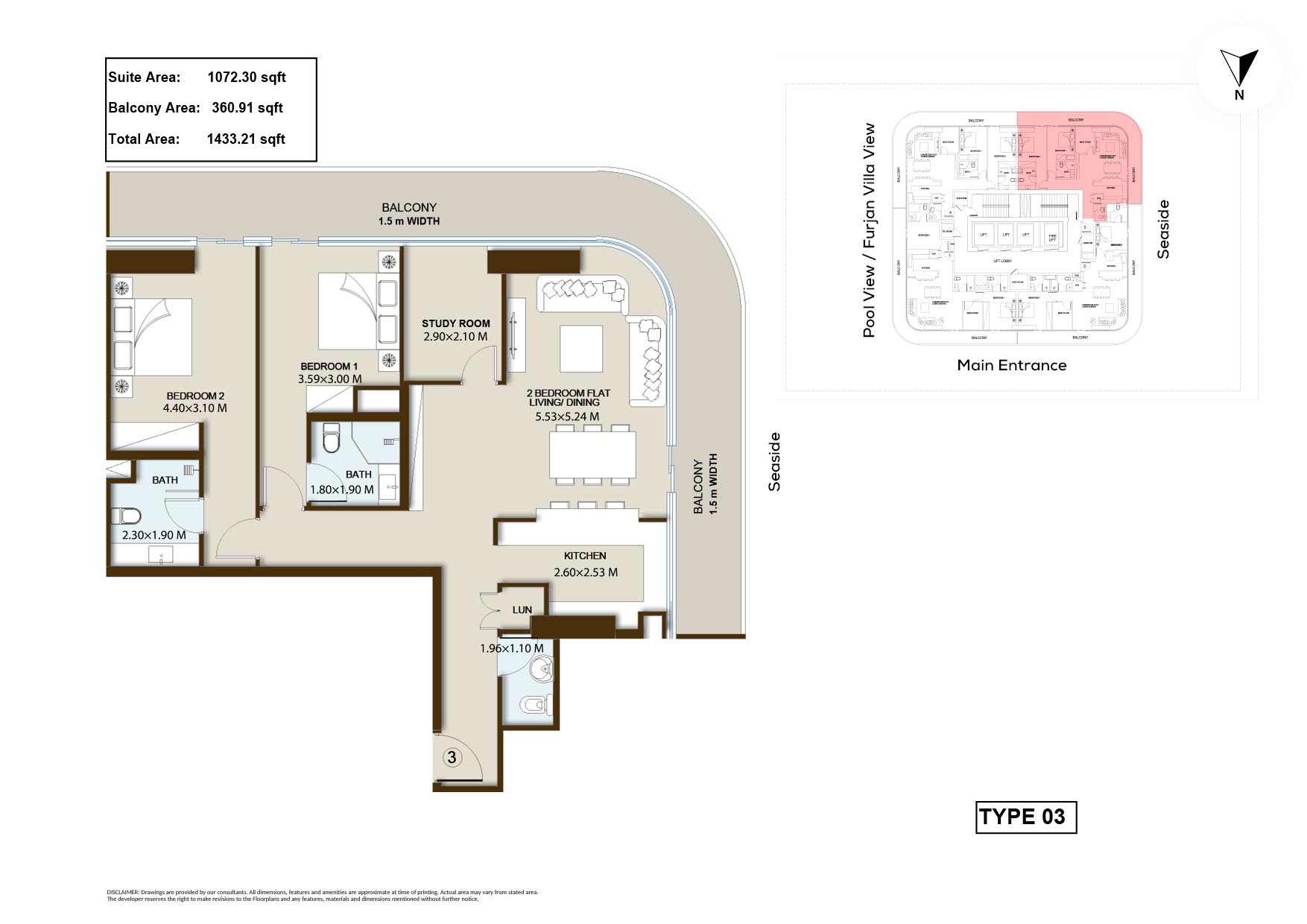
Type 03Apartments2 Bedrooms + StudyType 031433.21  Sq FtClick Here
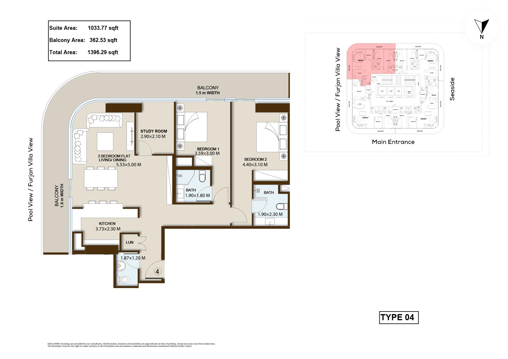
Type 04Apartments2 Bedrooms + StudyType 041396.29  Sq FtClick Here

Thank You for your enquiry ! We will get back to you shortly...

Please wait...

Get in touch with us!

Similar Projects

PG Upper House
AED 1.11 M (1 BR)
PG Upper House

Jebel Ali, Dubai

Studio & 1 Bedroom

739.91 - 1054.97 Sq Ft

Q2 - 2023

View Detail

Similar Projects in Al Furjan

New Launch
Sunbliss Residences at Al Furjan
Call Us
Sunbliss Residences at Al Furjan

Purvanchal Developers

Apartment

1, 2 & 3 Bedroom

866 - 2,722 Sq Ft.

Dec - 2026

View Details
New Launch
HQ Arista at Al Furjan
Call Us
HQ Arista at Al Furjan

Arista Properties

Office Space

NA

Start From 1475 Sq Ft.

Dec - 2026

View Details
New Launch
Trussardi Residences 2
AED 910,000
Trussardi Residences 2

Mira Developer

Apartment

Studio, 1 & 2 Bedroom

387 - 1,606 Sq Ft.

Dec - 2026

View Details
New Launch
Kingdom Gate at Al Furjan
AED 1.45 M
Kingdom Gate at Al Furjan

Kingdom Development

Apartment

1, 2 & 3 Bedroom

823.87 to 2,098.42 Sq Ft.

Dec - 2026

View Details

Your exclusive invitation for booking your dream home.

Feel free to contact us, Our Professional team is always here to help you.
Get in touch