Samana Boulevard Heights - Floor Plan

Wadi Al Safa 5, Dubai

Listing

Floor Plan

Starting Price

AED 693,000

Samana Boulevard Heights floor plan has been designed to meet the needs of the modern urban living with studios, 1 and 2-bedroom apartments with pools. Every apartment is done with the prudent space planning, which maximizes the amount of natural light, ventilation, and smooth transition between indoor and outdoor areas. Select offers are also equipped with special advantages such as a laundry room or a storage room, which are the features with the maximum functionality. Finished interiors in bathrooms and kitchens are elegant and contain quality fixtures with generous layout that makes the interiors as comfortable as possible.

Floor Plan Brochure

Floor PlanCategorySub CategoryFloor DetailsSizes Size Breakup
Type 1 (Unit 106)1st FloorStudio + PoolType 1 (Unit 106)Click Here
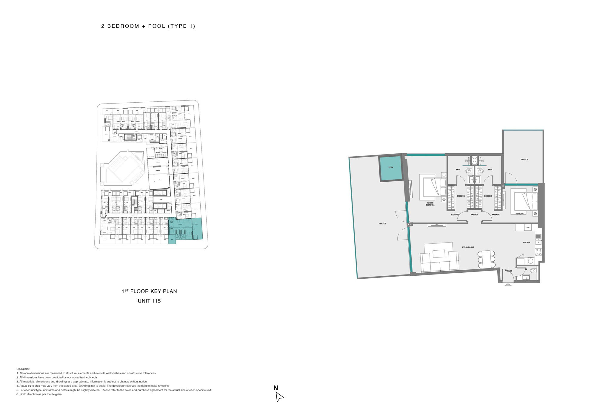
Type 1 (Unit 115)1st Floor2 Bedroom + PoolType 1 (Unit 115)Click Here
Type 1 (Unit 116-121)1st Floor1 Bedroom + PoolType 1 (Unit 116-121)Click Here
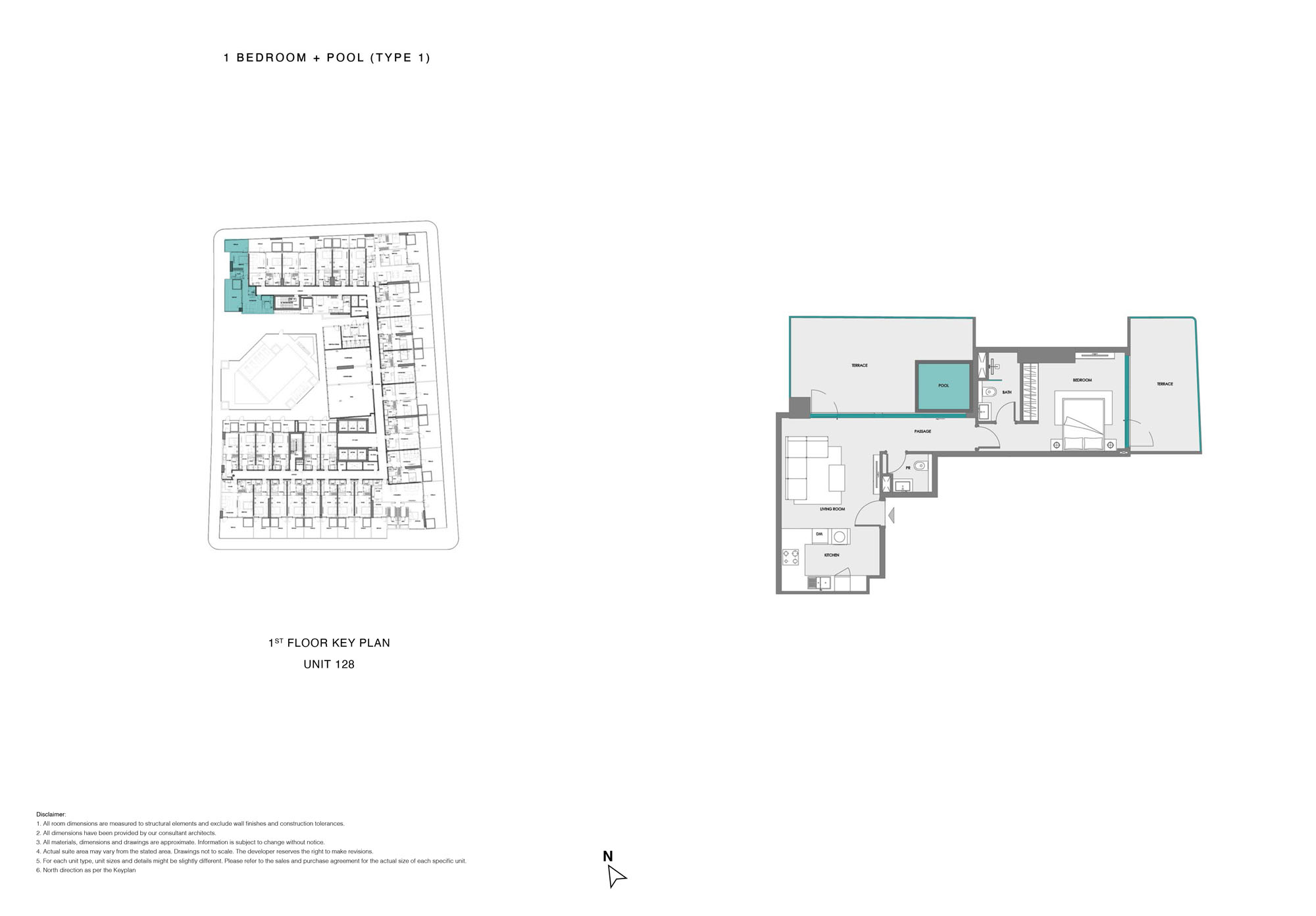
Type 1 (Unit 128)1st Floor1 Bedroom + PoolType 1 (Unit 128)Click Here
Type 1 (Unit 222 - 1722)2nd - 17th Floor2 Bedroom + PoolType 1 (Unit 222 - 1722)Click Here
Type 2 (Unit 101-1725)1st - 17th FloorStudio + PoolType 2 (Unit 101-1725)Click Here
Type 2 (Unit 107)1st Floor1 Bedroom + PoolType 2 (Unit 107)Click Here
Type 2 (Unit 122)1st Floor2 Bedroom + PoolType 2 (Unit 122)Click Here
Type 2 (Unit 215 - 1715)2nd - 17th Floor2 Bedroom + PoolType 2 (Unit 215 - 1715)Click Here
Type 2 (Unit 228 - 1728)2nd - 17th Floor1 Bedroom + PoolType 2 (Unit 228 - 1728)Click Here
Type 3 (Unit 102-1703)1st - 17th FloorStudio + PoolType 3 (Unit 102-1703)Click Here
Type 3 (Unit 216 - 1721)2nd - 17th Floor1 Bedroom + PoolType 3 (Unit 216 - 1721)Click Here
Type 4 (Unit 108-114)1st FloorStudio + PoolType 4 (Unit 108-114)Click Here
Type 4 (Unit 207 - 1707)2nd - 17th Floor1 Bedroom + PoolType 4 (Unit 207 - 1707)Click Here
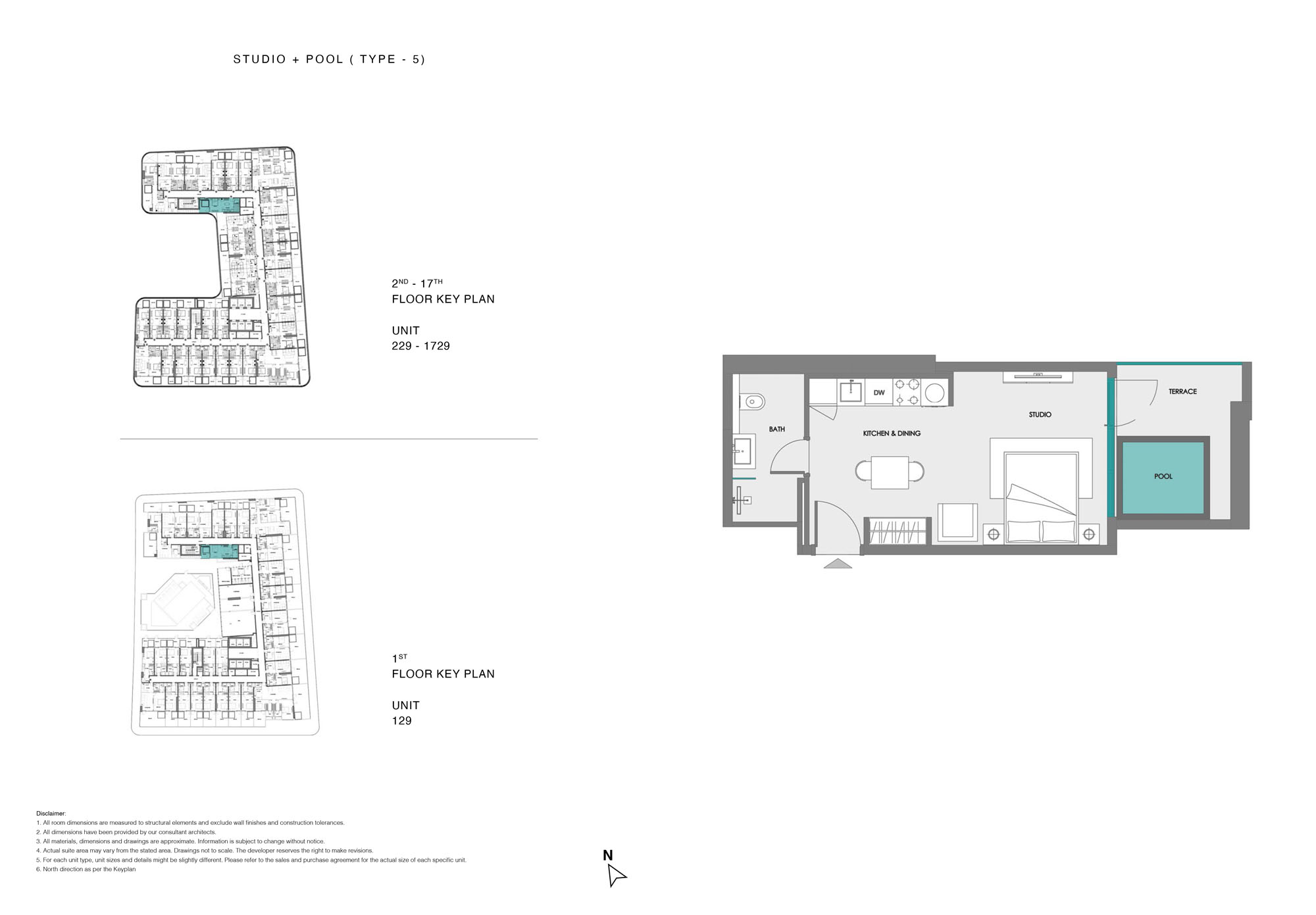
Type 5 (Unit 129-1729)1st - 17th FloorStudio + PoolType 5 (Unit 129-1729)Click Here
Type 6 (Unit 206-1706)2nd - 17th FloorStudio + PoolType 6 (Unit 206-1706)Click Here
Type 7 (Unit 208-1714)2nd - 17th FloorStudio + PoolType 7 (Unit 208-1714)Click Here

Thank You for your enquiry ! We will get back to you shortly...

Please wait...

Get in touch with us!

Similar Projects

Samana Sky Views
AED 689,000
Samana Sky Views

IMPZ, Dubai

Studio, 1 & 2 Bedroom

418 - 1,593 Sq Ft.

Q4 - 2028

View Detail
Samana Hills South 2
AED 599K
Samana Hills South 2

Madinat Al Mataar, Dubai

Studio, 1 & 2 Bedroom

358 - 1,021 Sq Ft.

Sep - 2028

View Detail
Samana Ocean Crest
AED 2.1 Million
Samana Ocean Crest

Palm Deira, Dubai

1, 2, 3 & 4 Bedroom

Various Sizes

Q3 - 2028

View Detail
Samana Greenfield
AED 850,000
Samana Greenfield

Warsan 1, Dubai

1 & 2 Bedroom

650 - 950 Sq Ft.

Q4 - 2028

View Detail

Similar Projects in Dubai Land Residence Complex (DLRC)

New Launch
Celesto Tower
AED 555,000
Celesto Tower

Tarrad Development

Apartment

Studio, 1 & 2 Bedroom

350 - 927 Sq. Ft.

Q1 - 2029

View Details
New Launch
Beverly Park at DLRC
AED 625,000
Beverly Park at DLRC

AA HMB Real Estate Development

Apartment

Studio & 2 Bedroom

427 - 1,169 Sq Ft.

Q1 - 2029

View Details
New Launch
Cybele at DLRC
AED 640K
Cybele at DLRC

Wadan Developments

Apartment

Studio, 1, 2 & 3 Bedroom

440 - 1,670 Sq Ft.

Q1 - 2029

View Details
New Launch
Celesto 3 by Tarrad
AED 540,000
Celesto 3 by Tarrad

Tarrad Development

Apartment

Studios, 1 & 2 Bedroom

Various Sizes

Q1 - 2029

View Details

Your exclusive invitation for booking your dream home.

Feel free to contact us, Our Professional team is always here to help you.
Get in touch