Samana Imperial Garden - Floor Plan

Al Barsha 1, Dubai

Listing

Floor Plan

Starting Price

AED 800K

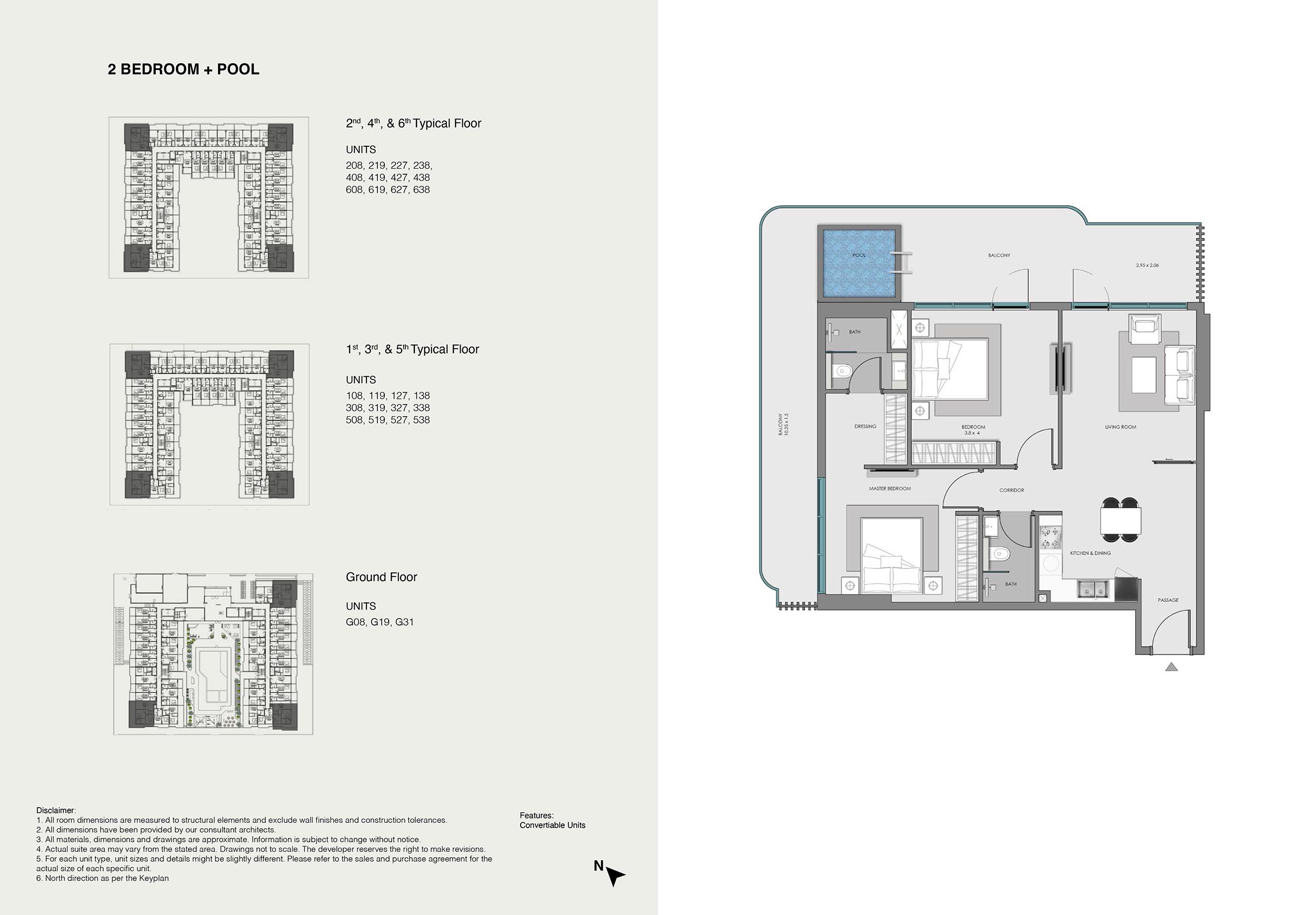
Samana Imperial Garden presents wide range of floor plans of apartments, designed carefully to work for all types of lifestyles. The smaller units are perfect for people who live alone or work in the city due to their small and practical design. If you are living with a significant other or a little family, the comfort and privacy of larger-bedroom unit is just right. Families and individuals who prefer more space or would like a home office or guest room can find it in the building’s spacious-bedroom apartments. Spacious windows and balconies admit plenty of sunlight and give owners great views of the attractive garden areas.

Floor Plan Brochure

Floor PlanCategorySub CategoryFloor DetailsSizes Size Breakup
1st FloorGround To 6th FloorTypical Floor Plan1st FloorClick Here
2nd FloorGround To 6th FloorTypical Floor Plan2nd FloorClick Here
3rd FloorGround To 6th FloorTypical Floor Plan3rd FloorClick Here
4th FloorGround To 6th FloorTypical Floor Plan4th FloorClick Here
5th FloorGround To 6th FloorTypical Floor Plan5th FloorClick Here
6th FloorGround To 6th FloorTypical Floor Plan6th FloorClick Here
Ground FloorGround To 6th FloorTypical Floor PlanGround FloorClick Here
Unit 126-626 (Type 3)1st To 6th Floor1 Bedroom + PoolUnit 126-626 (Type 3)Click Here
Unit 146-646 (Type 6)1st To 6th Floor1 Bedroom + PoolUnit 146-646 (Type 6)Click Here
Unit G01-645 (Type 1)Ground To 6th Floor1 Bedroom + PoolUnit G01-645 (Type 1)Click Here
Unit G03-643 (Type 2)Ground To 6th Floor1 Bedroom + PoolUnit G03-643 (Type 2)Click Here
Unit G07-639 (Type 7)Ground To 6th Floor1 Bedroom + PoolUnit G07-639 (Type 7)Click Here
Unit G08-6381st To 6th Floor2 Bedroom + PoolUnit G08-638Click Here
Unit G09-651 (Type 1)Ground To 6th FloorStudio + PoolUnit G09-651 (Type 1)Click Here
Unit G09-G35 (Type 2)Ground To 6th FloorStudio + PoolUnit G09-G35 (Type 2)Click Here
Unit G28-611 (Type 4)Ground To 6th Floor1 Bedroom + PoolUnit G28-611 (Type 4)Click Here
Unit G28-611 (Type 5)Ground To 6th Floor1 Bedroom + PoolUnit G28-611 (Type 5)Click Here

Thank You for your enquiry ! We will get back to you shortly...

Please wait...

Get in touch with us!

Similar Projects

Samana Boulevard Heights
AED 693,000
Samana Boulevard Heights

Wadi Al Safa 5, Dubai

Studio, 1 & 2 Bedroom

Various Sizes

Q1 - 2029

View Detail
Samana Sky Views
AED 689,000
Samana Sky Views

IMPZ, Dubai

Studio, 1 & 2 Bedroom

418 - 1,593 Sq Ft.

Q4 - 2028

View Detail
Samana Hills South 2
AED 599K
Samana Hills South 2

Madinat Al Mataar, Dubai

Studio, 1 & 2 Bedroom

358 - 1,021 Sq Ft.

Sep - 2028

View Detail
Samana Ocean Crest
AED 2.1 Million
Samana Ocean Crest

Palm Deira, Dubai

1, 2, 3 & 4 Bedroom

Various Sizes

Q3 - 2028

View Detail

Similar Projects in Arjan

New Launch
Binghatti Hillcrest
AED 799,999
Binghatti Hillcrest

Binghatti Developers

Apartment

Studio, 1 & 2 Bedroom

333.68 - 1,028.92 Sq Ft.

Q4 - 2028

View Details
New Launch
The Central Uptown
AED 720,000
The Central Uptown

Aqua Properties

Apartment

Studios, 1 & 2 Bedroom

400 - 1,250 Sq Ft.

Q4 - 2028

View Details
Under Construction
Torino
AED 435,000
Torino

ORO24

Apartment

Studio, 1 & 2 Bedrooms

364 to 867 Sq Ft

Q4 - 2028

View Details
New Launch
Empire Estates
Call Us
Empire Estates

Empire Developments

Triplex Apartment

2 Bedroom

2,137.48 Sq. Ft.

Q4 - 2028

View Details

Your exclusive invitation for booking your dream home.

Feel free to contact us, Our Professional team is always here to help you.
Get in touch