Sereno Residences at JVC - Floor Plan

Al Barsha South 4, Dubai

Listing

Floor Plan

Starting Price

AED 624,900

Unleashing the Sereno Residences, a prestigious and ultra-luxury address with floor plans of elegant & stylish studios and premium 1 & 2-bedroom apartments. This 5-storey jewel combines a total of 91 residences with open-plan layouts, soft and neutral finishes. The floor-to-ceiling windows in the living and bedrooms offer soothing sun-lit ambience, while the furnished bedrooms with wardrobes, modern kitchens with German appliances & premium quality elements, and stylish bathrooms offer convenient, exquisite, and elevated experiences.

Floor Plan Brochure

Floor PlanCategorySub CategoryFloor DetailsSizes Size Breakup
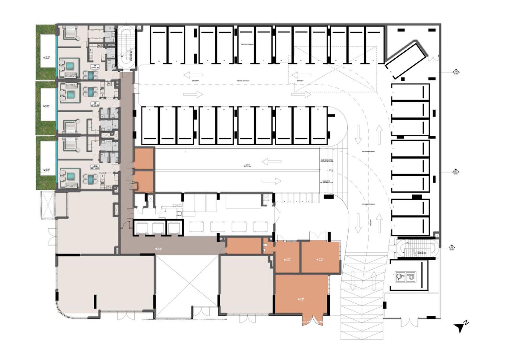
FIFTH FLOORGround to 5th FloorTypical Floor PlanFIFTH FLOORClick Here
FIRST FLOORGround to 5th FloorTypical Floor PlanFIRST FLOORClick Here
FOURTH FLOORGround to 5th FloorTypical Floor PlanFOURTH FLOORClick Here
GROUND FLOORGround to 5th FloorTypical Floor PlanGROUND FLOORClick Here
SECOND FLOORGround to 5th FloorTypical Floor PlanSECOND FLOORClick Here
THIRD FLOORGround to 5th FloorTypical Floor PlanTHIRD FLOORClick Here
UNIT 1-A1 To 5 Floors1 BedroomUNIT 1-A881.35  Sq FtClick Here
UNIT 1-A(M)1 To 5 Floors1 BedroomUNIT 1-A(M)879.20  Sq FtClick Here
UNIT 1-BGROUND FLOOR1 BedroomUNIT 1-B981.45  Sq FtClick Here
UNIT 1-B(M)GROUND FLOOR1 BedroomUNIT 1-B(M)982.10  Sq FtClick Here
UNIT 1-CFloor 11 BedroomUNIT 1-C1042.70  Sq FtClick Here
UNIT 1-C(M)Floor 11 BedroomUNIT 1-C(M)1048.84  Sq FtClick Here
UNIT 1-D1 To 5 Floors1 BedroomUNIT 1-D875.54  Sq FtClick Here
UNIT 1-D(M)1 To 5 Floors1 BedroomUNIT 1-D(M)875.75  Sq FtClick Here
UNIT 1-EFloor 11 BedroomUNIT 1-E1044.85  Sq FtClick Here
UNIT 1-E(M)Floor 11 BedroomUNIT 1-E(M)1043.67  Sq FtClick Here
UNIT 1-FGROUND FLOOR1 BedroomUNIT 1-F990.06  Sq FtClick Here
UNIT 1-G3 To 4 Floors1 BedroomUNIT 1-G937.00  Sq FtClick Here
UNIT 1-G(M)1 To 4 Floors1 BedroomUNIT 1-G(M)906.21  Sq FtClick Here
UNIT 1-HFloor 21 BedroomUNIT 1-H822.15  Sq FtClick Here
UNIT 1-I2 To 5 Floors1 BedroomUNIT 1-I838.72  Sq FtClick Here
UNIT 1-J2 To 5 Floors1 BedroomUNIT 1-J746.48  Sq FtClick Here
UNIT 1-KFloor 51 BedroomUNIT 1-K734.42  Sq FtClick Here
UNIT 1-K(M)Floor 51 BedroomUNIT 1-K(M)735.28  Sq FtClick Here
UNIT 1-LFloor 11 BedroomUNIT 1-L888.24  Sq FtClick Here
UNIT 2-A1 To 4 Floors2 BedroomsUNIT 2-A1276.28  Sq FtClick Here
UNIT 2-BFloor 52 BedroomsUNIT 2-B1469.06  Sq FtClick Here
UNIT 2-B(M)Floor 52 BedroomsUNIT 2-B(M)1475.52  Sq FtClick Here
UNIT 2-CFloor 52 BedroomsUNIT 2-C1554.63  Sq FtClick Here
UNIT 2-DFloor 52 BedroomsUNIT 2-D2098.64  Sq FtClick Here
UNIT 2-EFloor 12 BedroomsUNIT 2-E1204.91  Sq FtClick Here
UNIT S-A2 To 5 FloorsStudioUNIT S-A382.44  Sq FtClick Here
UNIT S-B1 To 4 FloorsStudioUNIT S-B388.47  Sq FtClick Here

Thank You for your enquiry ! We will get back to you shortly...

Please wait...

Get in touch with us!

Similar Projects in Jumeirah Village Circle

New Launch
Rose Gold Residences
AED 609,000
Rose Gold Residences

Zee Development

Apartment

Will be updated soon

2,224 - 3,867 Sq Ft.

Q4 - 2026

View Details
New Launch
Stax Tower at JVC
AED 663K
Stax Tower at JVC

Pasha One Development

Apartment

Studio, 1 & 2 Bedroom

384 - 1,524 Sq Ft.

Q4 - 2026

View Details
New Launch
Xenia Residences at JVC
AED 733,000
Xenia Residences at JVC

NYX Properties

Apartment

Studio, 1 & 2 Bedroom

425 - 2,501 Sq. Ft.

Q4 - 2026

View Details
New Launch
Solena The Orchard Place JVC
AED 700 K
Solena The Orchard Place JVC

Summit Real Estate Development

Apartment

Studios, 1 & 2 Bedroom

530 - 1340 Sq.Ft

Q4 - 2026

View Details

Your exclusive invitation for booking your dream home.

Feel free to contact us, Our Professional team is always here to help you.
Get in touch