Samana Sky Views - Floor Plan

IMPZ, Dubai

Listing

Floor Plan

Starting Price

AED 689,000

Samana Sky Views is an astonishing 22-stoarey residential address defined by its unique availability of carefully crafted homes floor plans. Optimized elegantly, this complex encompasses a different and impressive range of homes. Here, all residences feature signature-style spacious and elegant layouts, while the furnished and smart home technology with open-plan kitchens and dining area ensures a warm welcome with seamless accessibility and daily living convenience.

Floor Plan Brochure

Floor PlanCategorySub CategoryFloor DetailsSizes Size Breakup
1st Floor1st To 21st FloorTypical Floor Plan1st FloorClick Here
2nd-21st Floor1st To 21st FloorTypical Floor Plan2nd-21st FloorClick Here
Type 1 (Unit 101-2127)1st To 21st FloorStudio + PoolType 1 (Unit 101-2127)Click Here
Type 1 (Unit 105-2105)1st To 21st Floor1 Bedroom + PoolType 1 (Unit 105-2105)Click Here
Type 1 (Unit 106-2106)1st To 21st Floor2 Bedroom + PoolType 1 (Unit 106-2106)Click Here
Type 2 (Unit 103-2103)1st To 21st Floor2 Bedroom + PoolType 2 (Unit 103-2103)Click Here
Type 2 (Unit 104-2104)1st To 21st Floor1 Bedroom + PoolType 2 (Unit 104-2104)Click Here
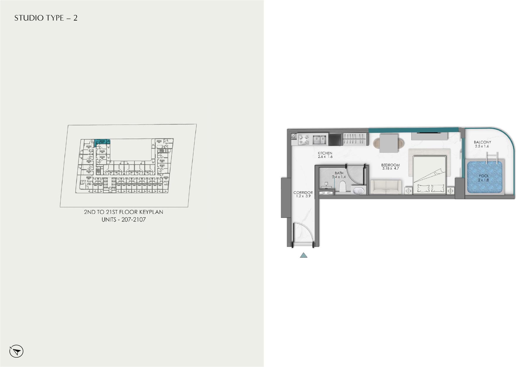
Type 2 (Unit 207-2107)2nd To 21st FloorStudio + PoolType 2 (Unit 207-2107)Click Here
Type 3 (Unit 107-2118)1st To 21st Floor1 Bedroom + PoolType 3 (Unit 107-2118)Click Here
Type 3 (Unit 215-2115)2nd To 21st Floor2 Bedroom + PoolType 3 (Unit 215-2115)Click Here
Type 4 (Unit 208-2113)2nd To 21st Floor1 Bedroom + PoolType 4 (Unit 208-2113)Click Here
Type 5 (Unit 209-2109)2nd To 21st Floor1 Bedroom + PoolType 5 (Unit 209-2109)Click Here
Type 6 (Unit 210-2110)2nd To 21st Floor1 Bedroom + PoolType 6 (Unit 210-2110)Click Here
Type 7 (Unit 214-2114)2nd To 21st Floor1 Bedroom + PoolType 7 (Unit 214-2114)Click Here
Type 8 (Unit 216-2116)2nd To 21st Floor1 Bedroom + PoolType 8 (Unit 216-2116)Click Here
Type 9 (Unit 217-2117)2nd To 21st Floor1 Bedroom + PoolType 9 (Unit 217-2117)Click Here

Thank You for your enquiry ! We will get back to you shortly...

Please wait...

Get in touch with us!

Similar Projects

Samana Greenfield
AED 850,000
Samana Greenfield

Warsan 1, Dubai

1 & 2 Bedroom

650 - 950 Sq Ft.

Q4 - 2028

View Detail
Samana Golf Views
AED 649,000
Samana Golf Views

Dubai Sports City, Dubai

Studio, 1, 2 & 3 Bedroom

393.31 - 2,727.60 Sq Ft.

Q3 - 2026

View Detail
Samana Boulevard Heights
AED 693,000
Samana Boulevard Heights

Wadi Al Safa 5, Dubai

Studio, 1 & 2 Bedroom

414 - 1,816 Sq Ft.

Q1 - 2029

View Detail
Samana Hills South 2
AED 599K
Samana Hills South 2

Madinat Al Mataar, Dubai

Studio, 1 & 2 Bedroom

358 - 1,021 Sq Ft.

Sep - 2028

View Detail

Similar Projects in Dubai Production City

New Launch
Nirvana Residences 1
AED 650K
Nirvana Residences 1

Meraki Developers

Apartment

Studio, 1, 2 & 3 Bedroom

434 - 2,092 Sq Ft.

Q4 - 2028

View Details
New Launch
Floarea Lakes
AED 640K
Floarea Lakes

Mashriq Elite Developments

Apartment

Studio, 1, 2 & 3 Bedroom

384 - 1,792 Sq Ft.

Q4 - 2028

View Details
New Launch
Golf Terrace Residences
AED 688K
Golf Terrace Residences

Asak Development

Apartment

Studio, 1 & 2 Bedroom

423 - 1,889 Sq Ft.

Q4 - 2028

View Details
New Launch
Coventry Place at Dubai Production City
AED 666,960
Coventry Place at Dubai Production City

GFS Developer

Apartment

Studio, 1 & 2 Bedroom

397 - 1,168 Sq. Ft.

Q4 - 2028

View Details

Your exclusive invitation for booking your dream home.

Feel free to contact us, Our Professional team is always here to help you.
Get in touch